Kursy walut NBP: USD 3,98 | EUR 4,32 | CHF 4,53 |

NESTOR Nieruchomości

Wyszukiwarka
Notes
Zgłoś ofertę
Kalkulator
Mieszkania
Domy
Działki
Lokale
Obiekty
Szczegóły oferty
Rodzaj oferty
mieszkanie ( sprzedaż )
Numer oferty
57322/455/OMS
Miejscowość
WARSZAWA, MOKOTÓW
Ulica
al. Niepodległości
Cena
1 189 000 PLN kalkulator
Cena za mkw
17 485,29 PLN mkw
Powierzchnia
68.00 m2
Liczba pokoi
3
Piętro
2
Liczba pięter
5
Rok budowy
1950
Opis
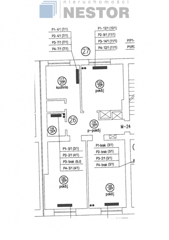
Mieszkanie o pow. 67, 5 m2, 2. piętro, 3 pokoje, kuchnia oddzielna z oknem, łazienka, oddzielne WC, duży przedpokój, bardzo dogodny rozkład, duże możliwości aranżacyjne, wysokość 2,94 m, duża piwnica z oknem, na podłodze w pokojach dębowy parkiet. Mieszkanie środkowe, dwustronne, jasne. Czynsz (całość, włącznie z ogrzewaniem i zaliczką na wodę) -ok. 980 zł. Stary Mokotów - kamienica z drugiej połowy lat 50., 5 pięter, cegła, nowoczesna winda. Piękne podwórko - ogród, z ławkami i mnóstwem zieleni, czysto i bezpiecznie, teren ogrodzony, domofon, monitoring, zadbane, wyremontowane klatki i podwórko, prężnie działająca wspólnota, spokojni, cisi sąsiedzi. Elewacja będzie odnawiana w najbliższym czasie. Mieszkanie doskonale nadaje się nie tylko do zamieszkania, ale również na biuro lub wynajem (tuż obok SGH), duży przedpokój może być poczekalnią lub mieścić kuchnię. Okolica z pełną infrastrukturą. W pobliżu parki, Szkoła Główna Handlowa, kino, sklepy, restauracje, szkoły, przedszkola, żłobki. Świetna komunikacja - do Metra Racławicka ok. 300 m., do tramwajów i Metra Pole Mokotowskie ok. 600 m. , przystanki autobusowe pod domem.
DLA ZAINTRESOWANYCH ZAKUPEM NIERUCHOMOŚCI KLIENTÓW CENA DO NEGOCJACJI !!!


GORĄCO POLECAM TĘ NIERUCHOMOŚĆ.
ZAPRASZAM NA PREZENTACJĘ MIESZKANIA
ZAINTERESOWANYCH PROSZĘ O KONTAKT TEL 690087400

Zapewniamy profesjonalną obsługę Państwa transakcji pod względem prawnym.

POMAGAMY KLIENTOM W UZYSKANIU KREDYTU NA NAJLEPSZYCH WARUNKACH. - Oferujemy bezpłatną konsultację doradcy kredytowego..
powyższe informacje nie stanowią oferty w rozumieniu Kodeksu Cywilnego
OFERTA BIURA NESTOR NIERUCHOMOŚCI.



Kontakt
ANDRZEJ FEDOROWICZ
tel 690087400
fedorowicz@nestor.nieruchomosci.pl

Kontakt do agenta

Agent prowadzący
ANDRZEJ FEDOROWICZ
Telefon
690087400
E-mail
andrzej.fedorowicz@nestor.nieruchomosci.pl

NESTOR
tel.: 22 894 47 50
email: biuro@nestor.nieruchomosci.pl

Wyślij zapytanie

Imię i Nazwisko
Telefon
E-mail
Treść zapytania

Wyrażam zgodę na przetwarzanie moich danych osobowych przez firmę NESTOR dla celów związanych z działalnością pośrednictwa w obrocie nieruchomościami, jednocześnie potwierdzam, iż zostałem poinformowany o tym, iż będę posiadać dostęp do treści swoich danych do ich edycji lub usunięcia.

Wyślij ofertę

E-mail
© 2026 NESTOR . Wszystkie prawa zastrzeżone.